石川・福井・富山エリアの新築⼀⼾建て

石川県白山市徳丸町A棟

【ZEH仕様+太陽光パネル搭載】 【駐車2台】

外観イメージ

外観イメージ

ブラウンを基調とした外壁が際立つ、スタイリッシュかつ落ち着きのあるデザインで、奥行きと高級感を演出しています♪駐車は2台可能です!

リビング

リビング

【施工例】明るい掃き出し窓があるリビングは、開放感とぬくもりが調和した空間!日中は陽の光で明るく、夜は照明でやさしく包まれます。 ※家具等の配置はイメージです。

キッチン

キッチン

【施工例】対面式キッチンは、家事をしながらリビングにいる家族の様子を見守れる人気のスタイル。自然と会話が生まれ、毎日のコミュニケーションがもっと楽しくなります!

主寝室

主寝室

【施工例】寝室には大容量のウォークインクローゼット完備!豊富な収納スペースで、衣類や個人のアイテムを整理整頓することができます。スッキリした寝室は癒しの空間を提供します。※家具等の配置はイメージです。

2階洋室

2階洋室

【施工例】洋室は2つご用意!ライフスタイルに合わせてお子様のお部屋やご主人様の書斎としてもご活用できます。収納力も抜群なのでお部屋をスッキリ保つことができます。

キッチン物入

キッチン物入

【施工例】キッチンの可動棚収納は、高さを自由に変えられて収納力アップ。調理家電やストック品も無駄なく収まり、使いやすさが続きます。 ※家具等の配置はイメージです。

おすすめポイント

月々支払額 66,539円~!

IRいしかわ鉄道「松任駅」 徒歩約18分

東明小学校 徒歩約14分

松任中学校 徒歩約7分

🔻NEW🔻 🌟キッチンや洗面脱衣室、階段下収納などあると便利な場所に収納を設置! 🌟IRいしかわ鉄道「松任駅」 徒歩約18分 🌟買い物施設が徒歩10分圏内 🌟通勤、通学、買い物の利便性◎ ーーーーーーーーーーーーーーーーーーーーー ■建築中の今だからこその特典■ コンセントの位置変更や増設 ※一部有料 クロスの変更 ※一部有料 リビングにエアコン1台プレゼント 等々 建築中だからこそ! セミオーダー感覚で仕様の変更が可能です👩🏼‍💼✨ ※ご契約されるタイミングや時期により対応できない場合がございますので、ご了承ください。 ーーーーーーーーーーーーーーーーーーーーー ・光熱費高騰の今!太陽光5.64kw標準装備 ・月々の光熱費を抑えられてお得! ・家事ラク導線の3LDK! ・利便性が高い充実の周辺環境 ・土地+建物+太陽光+外構+省エネエアコンが全てコミコミでこの価格!

所在地

石川県白山市徳丸町657番1

交通

IRいしかわ鉄道「松任駅」徒歩約18分

価格

2,980 万円 (税込)

間取り

3LDK

土地面積

126.18㎡ (38.16坪)

建物面積

89.42㎡ (27.04坪)

小学校区

東明小学校

中学校区

松任中学校

この物件のお支払い例

販売価格

2,980

万円 (税込)

月々支払

66,539

円 (税込)

支払い例

頭金

0

円 (税込)
ボーナス払い

0

円 (税込)

※福井銀行2年固定 金利0.35% 40年ローンの場合

現地

現地写真0

【現地写真】前面道路幅は約4.0mございます!

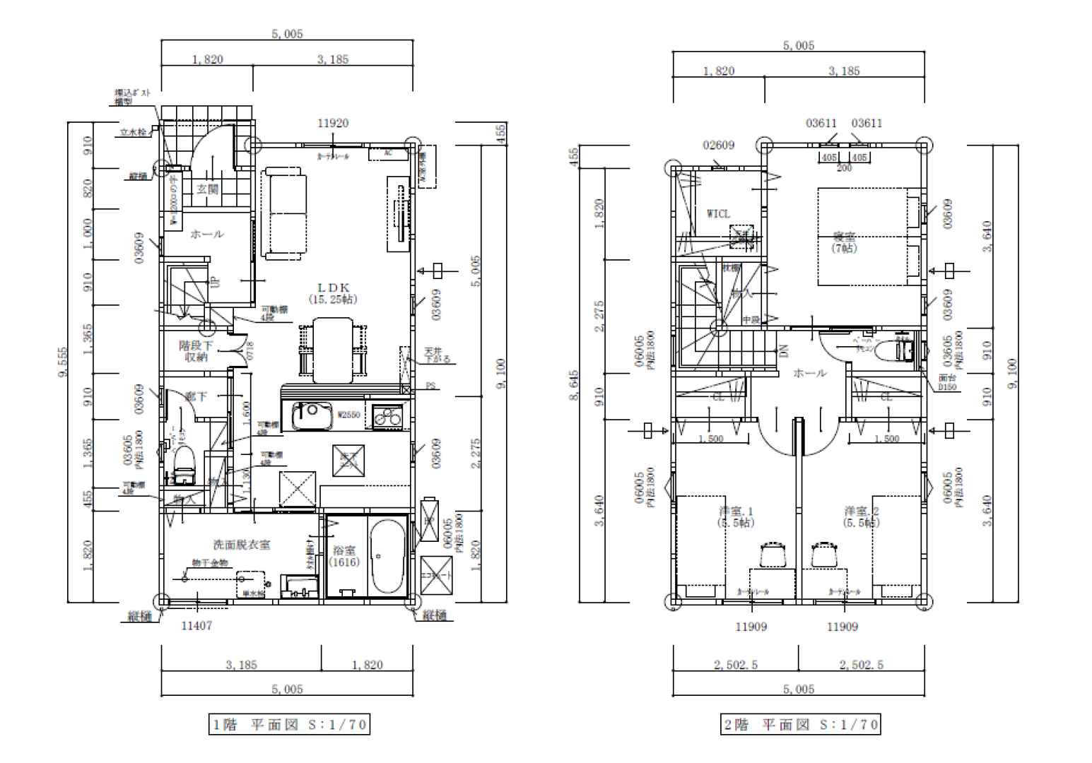
間取図

間取図0

LDKは一体型で家族が集まって楽しい時間を過ごすのに最適な空間です。2階には、CL完備の3つの居室を配置!さらにキッチンや階段下に物入完備で収納力◎+花粉の季節も安心のホスクリーン付洗面脱衣室。

お電話でのお問い合わせはこちら!
お気軽にどうぞ!

金沢店・富山店

0120-198-506

福井店

0120-198-516

《受付時間》10:00~18:00 水曜定休

設備・仕様

設備仕様0

太陽光発電システム

弊社の建売住宅は太陽光パネルが標準搭載されています。防災面でも安心&光熱削減で家計に優しい家に!

設備仕様1

キッチン

キッチンパネルは熱や汚れ、傷に強いホーロー素材を採用しております。 耐性が強いだけでなく、目地がない為サッと一拭きで掃除がしやすいことが特徴です。 さらに食洗機付きで洗い物の時間を削減し、家事の負担を軽減できます。 ※画像はイメージです

設備仕様2

システムバスルーム

熱を逃がさない断熱材で浴槽を囲み、浴槽全体をあたたか保温してくれるため、追い炊き回数を減らし光熱費が削減できます。 また浴槽は汚れがこびりつきにくいフェイスクリン材質でキレイが長持ちします。 さらに、髪の毛が絡まりお掃除が面倒なヘアキャッチャーは銅の力でゆめりと臭いを抑えながら、排水の力で流れた髪の毛をまとめてくれるため、簡単につまんでそのままごみ箱へポイ!と掃除ができます。 ※画像はイメージです

設備仕様3

洗面化粧台

三面鏡裏と洗面台は収納になっており収納物の大きさによって、トレーの高さを変えたり、引き出し部分や扉部分と使い分けができるため、効率よくたっぷりと収納できます。 さらに、洗面ボウルは広く・深い・平らな面のため、安定してバケツが置けてつけ置き洗いに便利です。 ※画像はイメージです

設備仕様4

オール電化

追い焚き機能付きフルオートタイプのエコキュートです。 非常時でも貯まった水を使用できるので、災害時の対策にも活躍してくれます。

設備仕様5

ホスクリーン

1階物干し室にはホスクリーンが1セット付いています。 一度にたくさんの洗濯物を干すことができます。 使う方に合わせて高さ調整もできますよ♪ ※物干し竿は付いていませんのご了承ください。

周辺環境

周辺環境0

アピタ松任店

徒歩約7分

周辺環境1

ファミリーマート白山三浦町店

徒歩約6分

周辺環境2

クスリのアオキ石同新町店

徒歩約6分

周辺環境3

わかみや保育所

徒歩約13分

周辺環境4

東明小学校

徒歩約14分

周辺環境5

松任中学校

徒歩約7分

周辺環境6

倉光郵便局

徒歩約9分

周辺環境7

金沢信用金庫

徒歩約3分

周辺環境8

石倉内科医院

徒歩約9分

物件概要

所在地

石川県白山市徳丸町657番1

交通

IRいしかわ鉄道「松任駅」徒歩約18分

価格

2,980 万円 (税込)

間取り

3LDK

土地面積

126.18㎡ (38.16坪)

建物面積

89.42㎡ (27.04坪)

建ぺい率

60%

容積率

160%

接道状況

向き : 北西側

道路幅 : 4.0m

接面幅 : 7.0m

土地権利

所有権

都市計画

市街化区域

地目

宅地

構造・工法

木造2階建・軸組工法

用途地域

第一種住居地域

電気

オール電化

屋根

ガルバリウム鋼板

ガス

上水道

公営水道

下水道

本下水

取引態様

売主

完成時期

2026年5月下旬

入居時期

2026年6月下旬

見学可能時期

2026年5月下旬

建築確認番号

白山市第25121010号

小学校区

東明小学校

中学校区

松任中学校

年収目安

375 万円 (税込)

現況

建築中

施工

ハイエスト事業グループ株式会社

駐車台数

2台

種目

新築一戸建て

その他

※銀行諸経費、火災保険料等は別途必要です。 詳細はお問合せ下さい。

情報更新日

2026年03月09日

CONTACT

お問い合わせフォーム

1

入力

2

完了

お問い合わせ内容(複数回答可)
お名前
必須
お名前(ふりがな)
必須
ご年齢
必須
電話番号
必須
メールアドレス
必須
※携帯電話、スマートフォンの設定が【受信拒否設設定】をされている方は、 メールが受け取れなくなってしまいますので、ドメイン指定受信を行ってください。
郵便番号
必須
※ハイフン“-”は不要です。
都道府県
必須
市区町村
必須
リーズナブルホームをどこでお知りになりましたか?
ご質問・ご要望
(できるだけ詳しくご記入いただきますとよりご希望に沿ったご紹介ができます)
石川・福井・富山エリアの新築一戸建てなら

お電話でのお問い合わせはこちら!

お気軽にどうぞ!

福井店

金沢店・富山店

《受付時間》10:00~18:00 水曜定休

リーズナブルホーム 金沢店

〒921-8064

石川県金沢市八日市5丁目426番地

フリーダイヤル:0120-198-506
リーズナブルホーム 福井店

〒910-0837

福井県福井市高柳1丁目916番地

フリーダイヤル:0120-198-516
リーズナブルホーム 富山店

〒939-8212

富山県富山市掛尾町283番地1

フリーダイヤル:0120-198-506

宅地建物取引業:国土交通大臣(2)第9164号

© Reasonable Home All Rights Reserved.

カタログを見る

来場予約

会員登録