石川・福井・富山エリアの新築⼀⼾建て
0120-198-506

福井県福井市大宮5丁目C棟

【ZEH仕様+太陽光パネル搭載】 【駐車3台】

【期間限定】先着5名様 プレゼント企画🍗

【期間限定】先着5名様 プレゼント企画🍗

※事前予約の上初めて来場される方、アンケートに回答いただいた方に限ります。※特典内容は変更となる場合がございます。※他キャンペーンとの併用はできません。※特典には数に限りがあり、上限に達し次第終了いたします。※1家族様1回限りです。

リビング

リビング

【施工例】LDKには対面型キッチンを採用◎ 料理をしながらお子様の様子を見守ることができ安心感UP♪家族との会話を楽しみながら過ごせる空間です。※家具の配置などはイメージです

キッチン

キッチン

【施工例】家事をしながら家族とコミュニケーションが取れる人気のスタイル。引き出しはソフトクローズ機能付きで小さなお子様がいるご家庭でも指を挟むなどの事故を防げます。※家具の配置等はイメージです。

主寝室

主寝室

【施工例】7帖の主寝室にはウォークインクローゼットが完備されており、豊富な収納スペースで衣類や個人のアイテムを整理整頓できます。スッキリとした寝室は、癒しの空間を提供します♪

2階洋室

2階洋室

【施工例】お子様のお部屋やご主人様の書斎として、多目的にご活用いただけます。収納力が抜群なので、荷物が増えてもお部屋をスッキリと保つことができます◎ ※家具の配置などはイメージです。

物入

物入

【施工例】各階ホールに物入を設置!収納力が高く玄関まわりの日用品やアウター類などをすっきり収納できる、見せない収納で空間も広々とした印象に!

おすすめポイント

月々の返済金額62,297円~!

えちぜん鉄道三国芦原線「日華化学前駅」まで徒歩約7分!

京福バス「堀ノ宮」まで徒歩約7分!

日新小学校まで徒歩約5分!

🔻NEW🔻 🦕収納場所が豊富!各居室+各階ホールに収納完備♪ 🦖ホスクリーン付洗面脱衣室で天気が変わりやすい福井県でも気にせず洗濯可能◎ ーーーーーーーーーーーーーーーーーーーーーーー ■建築中の今だからこその特典■ コンセントの位置変更や増設 ※一部有料 クロスの変更 ※一部有料 リビングにエアコン1台プレゼント 等々 建築中だからこそ! セミオーダー感覚で仕様の変更が可能です🦕✨ ※ご契約されるタイミングや時期により対応できない場合がございますので、ご了承ください。 ーーーーーーーーーーーーーーーーーーーーーーー ・光熱費高騰の今!太陽光4.92kw標準装備  月々の光熱費を抑えられてお得! ・家事ラク導線の3LDK! ・利便性が高い充実の周辺環境 ・土地+建物+太陽光+外構+省エネエアコンが全てコミコミでこの価格!

所在地

福井県福井市大宮5丁目1210番2

交通

えちぜん鉄道三国芦原線「日華化学前駅」550m徒歩約7分、京福バス「堀ノ宮」 550m徒歩約7分

価格

2,790 万円 (税込)

間取り

3LDK

土地面積

120.78㎡ (36.53坪)

建物面積

87.77㎡ (26.54坪)

小学校区

日新小学校

中学校区

藤島中学校

この物件のお支払い例

販売価格

2,790

万円 (税込)

月々支払

62,297

円 (税込)

支払い例

頭金

0

円 (税込)
ボーナス払い

0

円 (税込)

※北陸銀行2年固定 金利0.35% 40年ローンの場合

現地

現地写真0

【外観イメージ】モダンなツートンカラーのシンプルでスタイリッシュなデザインに加え、駐車場は3台分のスペースが確保されており、駐車に困ることもなく、ご家族のライフスタイルに合わせてご利用いただけます!

現地写真1

【現地写真】道路幅は約10mとゆとりがあり、対向車が来ても焦ることなく安心して車の出し入れができます◎

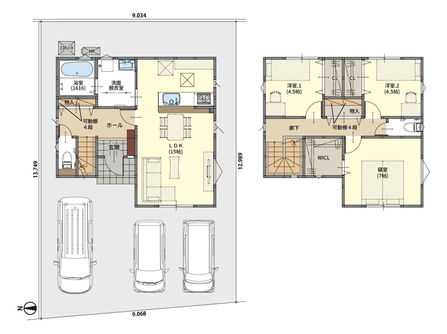
間取図

間取図0

【施工例】15帖のリビングルームでは、大きな窓から自然光がたっぷりと差し込みます。オープンなレイアウトと温かみのある雰囲気が、家族との質の高い時間を過ごすのに最適です。全居室にクローゼット(CL)、ホール内にも物入を備えており、自然と整頓上手になれる間取りです♪

お電話でのお問い合わせはこちら!
お気軽にどうぞ!

金沢店

0120-198-506

福井店

0120-198-516

《受付時間》10:00~18:00 水曜定休

設備・仕様

設備仕様0

太陽光発電システム

弊社の建売住宅は太陽光パネルが標準搭載されています。防災面でも安心&光熱削減で家計に優しい家に!

設備仕様1

オール電化

追い焚き機能付きフルオートタイプのエコキュートです。 非常時でも貯まった水を使用できるので、災害時の対策にも活躍してくれます。

設備仕様2

ホスクリーン

1階物干し室にはホスクリーンが1セット付いています。 一度にたくさんの洗濯物を干すことができます。 使う方に合わせて高さ調整もできますよ♪ ※物干し竿は付いていませんのご了承ください。

設備仕様3

キッチン

キッチンパネルは熱や汚れ、傷に強いホーロー素材! 耐久性が強いだけでなく、サッと一拭きで掃除がしやすいことが特徴です。 さらに食洗器付きで洗い物の時間を削減し、家事の負担を軽減できます。 ※画像はイメージです。

設備仕様4

システムバスルーム

熱を逃がさない断熱材で浴槽を囲み、浴槽全体をあたたか保温してくれるため、追い炊き回数を減らし光熱費が削減できます。 また浴槽は汚れがこびりつきにくいフェイスクリン材質でキレイが長持ちします。 さらに、ヘアキャッチャーは排水の力で流れた髪の毛がまとまるので、簡単につまんでそのままごみ箱へポイ! ※画像はイメージです。

設備仕様5

洗面化粧台

三面鏡には収納する物に合わせて高さを調整することができるスライドトレー付き♪ 洗面台の引き出し部分・扉部分も収納スペースのため、かしこく・たっぷり収納できます。 洗面ボウルは広く平らで容量もたっぷり。バケツを置いても安定し、つけ置き洗いなどにも便利です。 ※画像はイメージです。

周辺環境

周辺環境0

ハニー食彩館大宮店

徒歩約7分

周辺環境1

ファミリーマート福井文京6丁目店

徒歩約9分

周辺環境2

スギドラッグ堀ノ宮店

徒歩約7分

周辺環境3

日新小学校

徒歩約5分

周辺環境4

藤島中学校

徒歩約5分

周辺環境5

花園幼稚園

徒歩約5分

周辺環境6

福井文京六郵便局

徒歩約12分

周辺環境7

福邦銀行堀の宮支店

徒歩約10分

周辺環境8

すこやか内科クリニック

徒歩約9分

物件概要

所在地

福井県福井市大宮5丁目1210番2

交通

えちぜん鉄道三国芦原線「日華化学前駅」550m徒歩約7分、京福バス「堀ノ宮」 550m徒歩約7分

価格

2,790 万円 (税込)

間取り

3LDK

土地面積

120.78㎡ (36.53坪)

建物面積

87.77㎡ (26.54坪)

建ぺい率

60%

容積率

200%

接道状況

向き : 西

道路幅 : 10.0m

接面幅 : 9.0m

土地権利

所有権

都市計画

市街化区域

地目

宅地

構造・工法

木造2階建・軸組工法

用途地域

第一種住居地域

電気

オール電化

屋根

ガルバリウム鋼板

ガス

上水道

公営水道

下水道

本下水

取引態様

売主

完成時期

2026年4月

入居時期

2026年4月

見学可能時期

2026年4月

建築確認番号

第R7確建0077号

小学校区

日新小学校

中学校区

藤島中学校

年収目安

350 万円 (税込)

現況

建築中

施工

ハイエスト事業グループ株式会社

駐車台数

3台

種目

新築一戸建て

その他

※銀行諸経費、火災保険料等は別途必要です。 詳細はお問合せ下さい。

情報更新日

2025年11月14日

CONTACT

お問い合わせフォーム

1

入力

2

完了

お問い合わせ内容(複数回答可)
お名前
必須
お名前(ふりがな)
必須
ご年齢
必須
電話番号
必須
メールアドレス
必須
※携帯電話、スマートフォンの設定が【受信拒否設設定】をされている方は、 メールが受け取れなくなってしまいますので、ドメイン指定受信を行ってください。
郵便番号
必須
都道府県
必須
市区町村
必須
リーズナブルホームをどこでお知りになりましたか?
ご質問・ご要望
(できるだけ詳しくご記入いただきますとよりご希望に沿ったご紹介ができます)
石川・福井・富山エリアの新築一戸建てなら
リーズナブルホーム 金沢店

〒921-8064

石川県金沢市八日市5丁目426番地

フリーダイヤル:0120-198-506
リーズナブルホーム 福井店

〒910-0837

福井県福井市高柳1丁目916番地

フリーダイヤル:0120-198-516

お電話でのお問い合わせはこちら!

お気軽にどうぞ!

福井店

金沢店

《受付時間》10:00~18:00 水曜定休

宅地建物取引業:国土交通大臣(2)第9164号

© Reasonable Home All Rights Reserved.

カタログを見る

来場予約

会員登録