石川・福井・富山エリアの新築⼀⼾建て

石川県野々市市本町5丁目

【ZEH仕様+太陽光パネル搭載】 【駐車3台】

外観イメージ

外観イメージ

ダークカラーの外壁に木目アクセントを組み合わせた、上質感のある外観。窓の配置や高さにもこだわり、外からの視線に配慮しながら採光を確保。シンプルながら存在感のあるデザインが、街並みに映えます。

リビング

リビング

【施工例】明るい掃き出し窓があるリビングは、開放感とぬくもりが調和した空間!日中は陽の光で明るく、夜は照明でやさしく包まれます。 ※家具等の配置はイメージです。

キッチン

キッチン

【施工例】対面式キッチンは、家事をしながらリビングにいる家族の様子を見守れる人気のスタイル。自然と会話が生まれ、毎日のコミュニケーションがもっと楽しくなります!

主寝室

主寝室

【施工例】寝室には大容量のウォークインクローゼット完備!豊富な収納スペースで、衣類や個人のアイテムを整理整頓することができます。スッキリした寝室は癒しの空間を提供します。※家具等の配置はイメージです。

2階洋室

2階洋室

【施工例】洋室は2つご用意!ライフスタイルに合わせてお子様のお部屋やご主人様の書斎としてもご活用できます。収納力も抜群なのでお部屋をスッキリ保つことができます。※家具等の配置はイメージです。

物干し室

物干し室

【施工例】忙しい毎日にうれしい、室内物干しスペース。急な雨や雪の日も安心して洗濯物が干せます。窓付きで風通しも良く、家事効率を高める工夫が詰まっています。

おすすめポイント

月々支払額 75,694円~!

北鉄バス「太平寺」 400m 徒歩約 5分

コミュニティバスのっティ「カレード」 200m 徒歩約3分

野々市小学校 400m 徒歩約5分

🔻NEW🔻 🌟物干し専用室、階段下収納、寝室WICなど暮らしに便利な工夫が豊富! 🌟北鉄バス「太平寺」 400m 徒歩約5分 🌟買い物施設が徒歩10分圏内 🌟通勤、通学、買い物の利便性◎ ーーーーーーーーーーーーーーーーーーーーー ■建築中の今だからこその特典■ コンセントの位置変更や増設 ※一部有料 クロスの変更 ※一部有料 リビングにエアコン1台プレゼント 等々 建築中だからこそ! セミオーダー感覚で仕様の変更が可能です👩🏼‍💼✨ ※ご契約されるタイミングや時期により対応できない場合がございますので、ご了承ください。 ーーーーーーーーーーーーーーーーーーーーー ・光熱費高騰の今!太陽光5.64kw標準装備 ・月々の光熱費を抑えられてお得! ・家事ラク導線の3LDK! ・利便性が高い充実の周辺環境 ・土地+建物+太陽光+外構+省エネエアコンが全てコミコミでこの価格!

所在地

石川県野々市市本町5丁目182番1

交通

北鉄バス「太平寺」 400m 徒歩約5分/コミュニティバスのっティ「カレード」 200m 徒歩約3分

価格

3,390 万円 (税込)

間取り

3LDK

土地面積

132.57㎡ (40.10坪)

建物面積

91.08㎡ (27.54坪)

小学校区

野々市小学校

中学校区

野々市中学校

この物件のお支払い例

販売価格

3,390

万円 (税込)

月々支払

75,694

円 (税込)

支払い例

頭金

0

円 (税込)
ボーナス払い

0

円 (税込)

※福井銀行2年固定 金利0.35% 40年ローンの場合

現地

現地写真0

【現地写真】前面道路幅は約6mです!車のすれ違いも安心の幅で、来客時に便利です◎

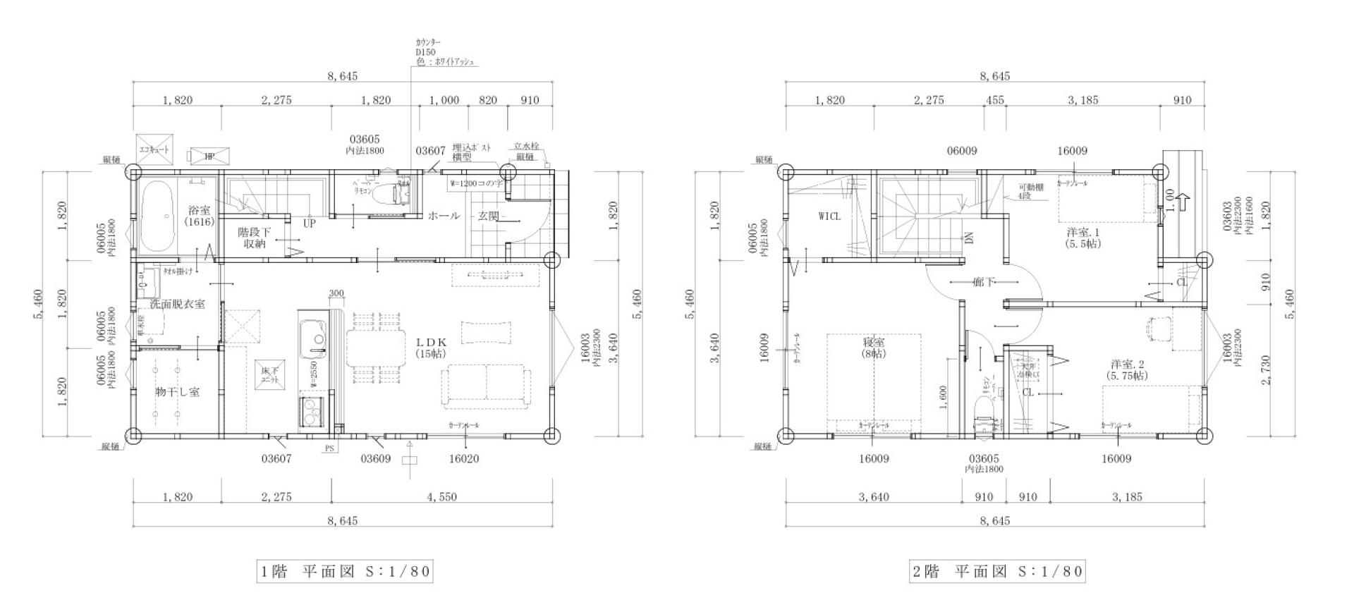
間取図

間取図0

LDKは一体型で家族が集まって楽しい時間を過ごすのに最適な空間です。2階には、CL完備の3つの居室を配置!さらに階段下に物入完備で収納力◎+花粉の季節も安心のホスクリーン付室内物干しスペースあり。

お電話でのお問い合わせはこちら!
お気軽にどうぞ!

金沢店・富山店

0120-198-506

福井店

0120-198-516

《受付時間》10:00~18:00 水曜定休

設備・仕様

設備仕様0

太陽光発電システム

弊社の建売住宅は太陽光パネルが標準搭載されています。防災面でも安心&光熱削減で家計に優しい家に!

設備仕様1

キッチン

キッチンパネルは熱や汚れ、傷に強いホーロー素材を採用しております。 耐性が強いだけでなく、目地がない為サッと一拭きで掃除がしやすいことが特徴です。 さらに食洗器付きで洗い物の時間を削減し、家事の負担を軽減できます。 ※画像はイメージです

設備仕様2

システムバスルーム

熱を逃がさない断熱材で浴槽を囲み、浴槽全体をあたたか保温してくれるため、追い炊き回数を減らし光熱費が削減できます。 また浴槽は汚れがこびりつきにくいフェイスクリン材質でキレイが長持ちします。 さらに、髪の毛が絡まりお掃除が面倒なヘアキャッチャーは銅の力でゆめりと臭いを抑えながら、排水の力で流れた髪の毛をまとめてくれるため、簡単につまんでそのままごみ箱へポイ!と掃除ができます。 ※画像はイメージです

設備仕様3

洗面化粧台

三面鏡裏と洗面台は収納になっており収納物の大きさによって、トレーの高さを変えたり、引き出し部分や扉部分と使い分けができるため、効率よくたっぷりと収納できます。 さらに、洗面ボウルは広く・深い・平らな面のため、安定してバケツが置けてつけ置き洗いに便利です。 ※画像はイメージです

設備仕様4

オール電化

追い焚き機能付きフルオートタイプのエコキュートです。 非常時でも貯まった水を使用できるので、災害時の対策にも活躍してくれます。

設備仕様5

ホスクリーン

1階物干し室にはホスクリーンが1セット付いています。 一度にたくさんの洗濯物を干すことができます。 使う方に合わせて高さ調整もできますよ♪ ※物干し竿は付いていませんのご了承ください。

周辺環境

周辺環境0

マックスバリュ野々市店

徒歩約8分

周辺環境1

セブンイレブン野々市本町5丁目店

徒歩約4分

周辺環境2

スギ薬局野々市中央店

徒歩約8分

周辺環境3

扇が丘幼稚園

徒歩約2分

周辺環境4

野々市小学校

徒歩約5分

周辺環境5

野々市中学校

徒歩約10分

周辺環境6

はくさん信用金庫

徒歩約10分 車約3分

周辺環境7

舩木医院

徒歩約5分

周辺環境8

太平寺郵便局

徒歩約5分

物件概要

所在地

石川県野々市市本町5丁目182番1

交通

北鉄バス「太平寺」 400m 徒歩約5分/コミュニティバスのっティ「カレード」 200m 徒歩約3分

価格

3,390 万円 (税込)

間取り

3LDK

土地面積

132.57㎡ (40.10坪)

建物面積

91.08㎡ (27.54坪)

建ぺい率

70%

容積率

200%

接道状況

向き : 東/南

道路幅 : 5.9/4.6m

接面幅 : 6.4/17.6m

土地権利

所有権

都市計画

市街化区域

地目

宅地

構造・工法

木造2階建・軸組工法

用途地域

第一種住居地域

電気

オール電化

屋根

ガルバリウム鋼板

ガス

上水道

公営水道

下水道

本下水

取引態様

売主

完成時期

2026年7月

入居時期

2026年8月

見学可能時期

2026年7月

建築確認番号

第IKJC25-1018号

小学校区

野々市小学校

中学校区

野々市中学校

年収目安

425 万円 (税込)

現況

建築中

施工

ハイエスト事業グループ株式会社

駐車台数

3台

種目

新築一戸建て

その他

※銀行諸経費、火災保険料等は別途必要です。 詳細はお問合せ下さい。

情報更新日

2026年03月09日

CONTACT

お問い合わせフォーム

1

入力

2

完了

お問い合わせ内容(複数回答可)
お名前
必須
お名前(ふりがな)
必須
ご年齢
必須
電話番号
必須
メールアドレス
必須
※携帯電話、スマートフォンの設定が【受信拒否設設定】をされている方は、 メールが受け取れなくなってしまいますので、ドメイン指定受信を行ってください。
郵便番号
必須
※ハイフン“-”は不要です。
都道府県
必須
市区町村
必須
リーズナブルホームをどこでお知りになりましたか?
ご質問・ご要望
(できるだけ詳しくご記入いただきますとよりご希望に沿ったご紹介ができます)
石川・福井・富山エリアの新築一戸建てなら

お電話でのお問い合わせはこちら!

お気軽にどうぞ!

福井店

金沢店・富山店

《受付時間》10:00~18:00 水曜定休

リーズナブルホーム 金沢店

〒921-8064

石川県金沢市八日市5丁目426番地

フリーダイヤル:0120-198-506
リーズナブルホーム 福井店

〒910-0837

福井県福井市高柳1丁目916番地

フリーダイヤル:0120-198-516
リーズナブルホーム 富山店

〒939-8212

富山県富山市掛尾町283番地1

フリーダイヤル:0120-198-506

宅地建物取引業:国土交通大臣(2)第9164号

© Reasonable Home All Rights Reserved.

カタログを見る

来場予約

会員登録