石川・福井・富山エリアの新築⼀⼾建て

福井県福井市灯明寺3丁目D棟

【ZEH仕様+太陽光パネル搭載】 【駐車3台可能】

外観イメージ

外観イメージ

【イメージ図】ブラック×ブラウンのコントラストが映える、デザイン性の高い外観が魅力の一邸となっています。駐車は3台可能です♪

リビング

リビング

【施工例】キッチンからもリビングが見渡せるため、どこに居ても家族を感じ、会話もはずみますね。家事をしながらお子さんの様子も見れるため、安心です♪※家具等の配置はイメージです。

キッチン

キッチン

【施工例】対面式キッチンは家事をしながら家族を見守り、コミュニケーションの取れる人気のスタイル!足元はキャビネット式でストック収納も充実!

主寝室

主寝室

【施工例】寝室には大容量のウォークインクローゼット完備!豊富な収納スペースで、衣類や個人のアイテムを整理整頓することができます。スッキリした寝室は癒しの空間を提供します。※家具等の配置はイメージです。

2階洋室

2階洋室

【施工例】洋室は2つご用意!ライフスタイルに合わせてお子様のお部屋やご主人様の書斎としてもご活用できます。収納力◎なのでお部屋をスッキリ保つことができます。※家具等の配置はイメージです。

ウォークインクローゼット

ウォークインクローゼット

【施工例】大容量のウォークインクローゼットは大切なお洋服も常に換気ができ、きれいな状態で保管することができるため長持ちします!お洋服だけでなく、お子さんのおもちゃや大事な趣味の道具まで収納できます!

おすすめポイント

月々実質負担57,678円~!

京福バス「灯明寺」まで徒歩約8分!

明新小学校まで徒歩約12分!

灯明寺中学校まで徒歩約5分!

🦖NEW🦖 🌟家事ラク動線3LDK+キッチン・2階ホール・各居室に物入で収納力◎ 🌟対面キッチンを採用し、調理中もリビングにいる家族と自然に会話ができる♪ 🌟周辺の買い物施設も充実しており生活しやすい環境 ーーーーーーーーーーーーーーーーーーーーーーー ■建築中の今だからこその特典■ コンセントの位置変更や増設 ※一部有料 クロスの変更 ※一部有料 リビングにエアコン1台プレゼント 等々 建築中だからこそ! セミオーダー感覚で仕様の変更が可能です🦕✨ ※ご契約されるタイミングや時期により対応できない場合がございますので、ご了承ください。 ーーーーーーーーーーーーーーーーーーーーーーー ◆光熱費高騰の今だからこそ!太陽光4.92kw標準装備で月々の光熱費を抑えられてお得! ◆家事ラク導線の3LDK+キッチン・2階ホール付 ◆土地+建物+太陽光+外構+省エネエアコンが全てコミコミでこの価格! 【月々のお支払い目安】 月々63,860円   売電予想▲6,182円=実質負担57,678円   ※売電率60%想定。発電量を保証するものではありません。   ※月々売電予想額は初年度~4年目の目安です。    (5~10年目:月々売電予想2,060円/実質負担61,800円) ◆充実の周辺環境 ・ハニー新鮮館灯明寺 徒歩約4分 ・明新小学校 徒歩約12分

所在地

福井県福井市灯明寺3丁目915番1

交通

京福バス「灯明寺」 徒歩約8分

価格

2,860 万円 (税込)

間取り

3LDK

土地面積

124.81㎡ (37.75坪)

建物面積

88.59㎡ (26.79坪)

小学校区

明新小学校

中学校区

灯明寺中学校

この物件のお支払い例

販売価格

2,860

万円 (税込)

月々支払

63,860

円 (税込)

支払い例

頭金

0

円 (税込)
ボーナス払い

0

円 (税込)

※福井銀行2年固定 金利0.35% 40年ローンの場合

現地

現地写真0

【現地写真】前面道路幅が約8.5mと6mの角地です!車同士がすれ違える幅で駐車しやすいだけでなく、角地のため日当たりも良好です◎

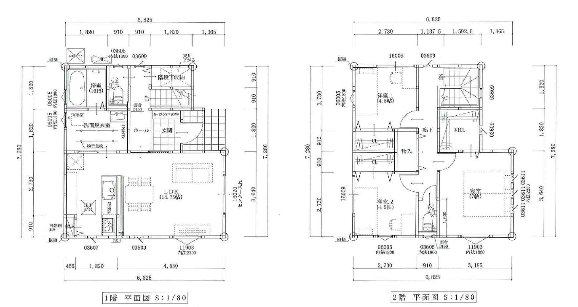
間取図

間取図0

LDKは家族が集まって楽しい時間を過ごすのに最適な空間。2階には、3つの居室が配置され、各居室CLを完備しており、衣類や小物の収納にも困りません。

お電話でのお問い合わせはこちら!
お気軽にどうぞ!

金沢店・富山店

0120-198-506

福井店

0120-198-516

《受付時間》10:00~18:00 水曜定休

設備・仕様

設備仕様0

太陽光発電システム

弊社の建売住宅は太陽光パネルが標準搭載されています。防災面でも安心&光熱削減で家計に優しい家に!

設備仕様1

オール電化

追い焚き機能付きフルオートタイプのエコキュートです。 非常時でも貯まった水を使用できるので、災害時の対策にも活躍してくれます。

設備仕様2

ホスクリーン

1階物干し室にはホスクリーンが2セット付いています。 一度にたくさんの洗濯物を干すことができます。 使う方に合わせて高さ調整もできますよ♪ ※物干し竿は付いていませんのご了承ください。

設備仕様3

キッチン

キッチンパネルは熱や汚れ、傷に強いホーロー素材! 耐久性が強いだけでなく、サッと一拭きで掃除がしやすいことが特徴です。 さらに食洗機付きで洗い物の時間を削減し、家事の負担を軽減できます。 ※画像はイメージです。

設備仕様4

システムバスルーム

熱を逃がさない断熱材で浴槽を囲み、浴槽全体をあたたか保温してくれるため、追い炊き回数を減らし光熱費が削減できます。 また浴槽は汚れがこびりつきにくいフェイスクリン材質でキレイが長持ちします。 さらに、ヘアキャッチャーは排水の力で流れた髪の毛がまとまるので、簡単につまんでそのままごみ箱へポイ! ※画像はイメージです。

設備仕様5

洗面化粧台

三面鏡には収納する物に合わせて高さを調整することができるスライドトレー付き♪ 洗面台の引き出し部分・扉部分も収納スペースのため、かしこく・たっぷり収納できます。 洗面ボウルは広く平らで容量もたっぷり。バケツを置いても安定し、つけ置き洗いなどにも便利です。 ※画像はイメージです。

周辺環境

周辺環境0

ハニー新鮮館灯明寺店

徒歩約4分

周辺環境1

ファミリーマート福井舟橋新一丁目店

徒歩約9分、車約3分

周辺環境2

クスリのアオキ灯明寺店

徒歩約5分

周辺環境3

ゆりかご認定こども園

徒歩約6分、車約3分

周辺環境4

明新小学校

徒歩約12分

周辺環境5

灯明寺中学校

徒歩約5分

周辺環境6

中藤島郵便局

徒歩約15分、車約3分

周辺環境7

みさわクリニック

徒歩約3分

周辺環境8

福井銀行経田支店

徒歩約19分、車約4分

物件概要

所在地

福井県福井市灯明寺3丁目915番1

交通

京福バス「灯明寺」 徒歩約8分

価格

2,860 万円 (税込)

間取り

3LDK

土地面積

124.81㎡ (37.75坪)

建物面積

88.59㎡ (26.79坪)

建ぺい率

70%

容積率

200%

接道状況

向き : 北/東

道路幅 : 8.5m/6.0m

接面幅 : 11.6m/10.1m

土地権利

所有権

都市計画

市街化区域

地目

宅地

構造・工法

木造2階建・軸組工法

用途地域

第一種中高層住居専用地域

電気

オール電化

屋根

ガルバリウム鋼板

ガス

上水道

公営水道

下水道

本下水

取引態様

売主

完成時期

2026年8月

入居時期

要相談

見学可能時期

2026年7月

建築確認番号

第R7確建0184号

小学校区

明新小学校

中学校区

灯明寺中学校

年収目安

360 万円 (税込)

現況

建築中

施工

ハイエスト事業グループ株式会社

駐車台数

3台

種目

新築一戸建て

その他

※銀行諸経費、火災保険料等は別途必要です。 詳細はお問合せ下さい。

情報更新日

2026年04月27日

CONTACT

お問い合わせフォーム

1

入力

2

完了

お問い合わせ内容(複数回答可)
お名前
必須
お名前(ふりがな)
必須
ご年齢
必須
電話番号
必須
メールアドレス
必須
※携帯電話、スマートフォンの設定が【受信拒否設設定】をされている方は、 メールが受け取れなくなってしまいますので、ドメイン指定受信を行ってください。
郵便番号
必須
※ハイフン“-”は不要です。
都道府県
必須
市区町村
必須
リーズナブルホームをどこでお知りになりましたか?
ご質問・ご要望
(できるだけ詳しくご記入いただきますとよりご希望に沿ったご紹介ができます)
石川・福井・富山エリアの新築一戸建てなら

お電話でのお問い合わせはこちら!

お気軽にどうぞ!

福井店

金沢店・富山店

《受付時間》10:00~18:00 水曜定休

リーズナブルホーム 金沢店

〒921-8064

石川県金沢市八日市5丁目426番地

フリーダイヤル:0120-198-506
リーズナブルホーム 福井店

〒910-0837

福井県福井市高柳1丁目916番地

フリーダイヤル:0120-198-516
リーズナブルホーム 富山店

〒939-8212

富山県富山市掛尾町283番地1

フリーダイヤル:0120-198-506

宅地建物取引業:国土交通大臣(2)第9164号

© Reasonable Home All Rights Reserved.

カタログを見る

来場予約

会員登録