石川・福井・富山エリアの新築⼀⼾建て
0120-198-506

石川県金沢市円光寺2丁目B棟

【ZEH仕様+太陽光パネル搭載】 【駐車3台】

【期間限定】先着5名様 プレゼント企画🍗

【期間限定】先着5名様 プレゼント企画🍗

※事前予約の上初めて来場される方、アンケートに回答いただいた方に限ります。※特典内容は変更となる場合がございます。※他キャンペーンとの併用はできません。※特典には数に限りがあり、上限に達し次第終了いたします。※1家族様1回限りです。

リビング

リビング

【施工例】家族団らんスペースには大きな掃き出し窓があり、自然光を採り入れ、明るい空間になります♪※家具等はイメージです。

キッチン

キッチン

【施工例】対面式キッチンは家事をしながら家族を見守り、コミュニケーションの取れる人気のスタイル!足元はキャビネット式でストック収納も充実!

主寝室

主寝室

【施工例】主寝室には大容量のクローゼット完備!豊富な収納スペースで、衣類や個人のアイテムを整理整頓することができます。スッキリした寝室は癒しの空間を提供します。※家具等はイメージです。

2階洋室

2階洋室

【施工例】洋室は2つございます!ご家族のライフスタイルに合わせて、お子様のお部屋やご主人様の書斎としてもご活用できます。収納力も抜群なのでお部屋をスッキリ保つことができます。

キッチン物入

キッチン物入

【施工例】キッチンスペースには可動棚タイプの物入を完備!大きさ問わず、食器や食料品を収納でき、キッチン台もスッキリです◎※収納品等はイメージです。

おすすめポイント

月々の返済金額66,539円~!

北鉄バス「円光寺」徒歩約4分!

長坂台小学校徒歩約12分!

買物施設まで徒歩約4分で生活利便性◎

🔻NEW🔻 🌟小学校まで徒歩約12分で安心の通学距離 🌟買い物施設まで徒歩約4分 🌟お向かいが公園で子どもとの遊び場に◎ ーーーーーーーーーーーーーーーーーーーーーーー ■建築中の今だからこその特典■ コンセントの位置変更や増設 ※一部有料 クロスの変更 ※一部有料 リビングにエアコン1台プレゼント 等々 建築中だからこそ! セミオーダー感覚で仕様の変更が可能です👩🏼‍💼✨ ※ご契約されるタイミングや時期により対応できない場合がございますので、ご了承ください。 ーーーーーーーーーーーーーーーーーーーーーーー ・光熱費高騰の今!太陽光4.92kw標準装備 ・月々の光熱費を抑えられてお得! ・家事ラク導線の3LDK! ・利便性が高い充実の周辺環境 ・土地+建物+太陽光+外構+省エネエアコンが全てコミコミでこの価格!

所在地

石川県金沢市円光寺2丁目8番2

交通

北鉄バス「円光寺」 徒歩約4分

価格

2,980 万円 (税込)

間取り

3LDK

土地面積

101.71㎡ (30.77坪)

建物面積

82.38㎡ (24.91坪)

小学校区

長坂台小学校

中学校区

野田中学校

この物件のお支払い例

販売価格

2,980

万円 (税込)

月々支払

66,539

円 (税込)

支払い例

頭金

0

円 (税込)
ボーナス払い

0

円 (税込)

※北陸銀行2年固定 金利0.35% 40年ローンの場合

現地

現地写真0

【外観イメージ】スタイリッシュなダークグレーとホワイトのツートンカラーが映える、都会的で洗練された外観デザイン。玄関は落ち着いた同系色のドアを採用し、高級感を演出。

現地写真1

【現地写真】前面道路幅は約5.88mございます!お向かいは公園なのでお子様の遊び場にはもちろん、圧迫感が少なく快適に過ごせる周辺環境となっております!

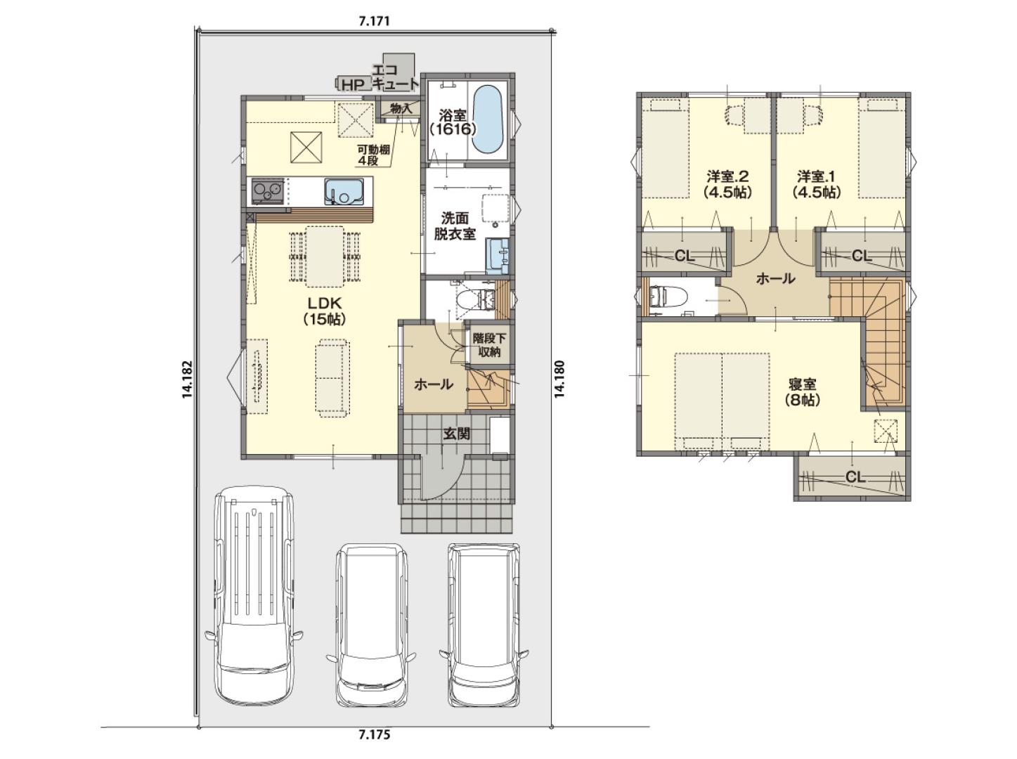
間取図

間取図0

LDKは家族が集まって楽しい時間を過ごすのに最適な空間。2階には、3つの居室が配置され、各居室CLを完備しており、衣類や小物の収納にも困りません。

お電話でのお問い合わせはこちら!
お気軽にどうぞ!

金沢店

0120-198-506

福井店

0120-198-516

《受付時間》10:00~18:00 水曜定休

設備・仕様

設備仕様0

太陽光発電システム

弊社の建売住宅は太陽光パネルが標準搭載されています。防災面でも安心&光熱削減で家計に優しい家に!

設備仕様1

キッチン

キッチンパネルは熱や汚れ、傷に強いホーロー素材を採用しております。 耐性が強いだけでなく、目地がない為サッと一拭きで掃除がしやすいことが特徴です。 さらに食洗器付きで洗い物の時間を削減し、家事の負担を軽減できます。 ※画像はイメージです

設備仕様2

システムバスルーム

熱を逃がさない断熱材で浴槽を囲み、浴槽全体をあたたか保温してくれるため、追い炊き回数を減らし光熱費が削減できます。 また浴槽は汚れがこびりつきにくいフェイスクリン材質でキレイが長持ちします。 さらに、髪の毛が絡まりお掃除が面倒なヘアキャッチャーは銅の力でゆめりと臭いを抑えながら、排水の力で流れた髪の毛をまとめてくれるため、簡単につまんでそのままごみ箱へポイ!と掃除ができます。 ※画像はイメージです

設備仕様3

洗面化粧台

三面鏡裏と洗面台は収納になっており収納物の大きさによって、トレーの高さを変えたり、引き出し部分や扉部分と使い分けができるため、効率よくたっぷりと収納できます。 さらに、洗面ボウルは広く・深い・平らな面のため、安定してバケツが置けてつけ置き洗いに便利です。 ※画像はイメージです

設備仕様4

オール電化

追い焚き機能付きフルオートタイプのエコキュートです。 非常時でも貯まった水を使用できるので、災害時の対策にも活躍してくれます。

設備仕様5

ホスクリーン

1階物干し室にはホスクリーンが1セット付いています。 一度にたくさんの洗濯物を干すことができます。 使う方に合わせて高さ調整もできますよ♪ ※物干し竿は付いていませんのご了承ください。

周辺環境

周辺環境0

アルビス泉が丘サンピア店

徒歩約4分

周辺環境1

V・drug泉が丘店

徒歩約4分

周辺環境2

ローソン金沢山科店

徒歩約7分

周辺環境3

伏見幼稚園

徒歩約8分

周辺環境4

長坂台小学校

徒歩約12分

周辺環境5

野田中学校

徒歩約22分

周辺環境6

北國銀行円光寺支店

徒歩約7分

周辺環境7

金沢円光寺郵便局

徒歩約7分

周辺環境8

福島医院

徒歩約3分

物件概要

所在地

石川県金沢市円光寺2丁目8番2

交通

北鉄バス「円光寺」 徒歩約4分

価格

2,980 万円 (税込)

間取り

3LDK

土地面積

101.71㎡ (30.77坪)

建物面積

82.38㎡ (24.91坪)

建ぺい率

60%

容積率

200%

接道状況

向き : 北

道路幅 : 6.0m

接面幅 : 7.1m

土地権利

所有権

都市計画

市街化区域

地目

宅地

構造・工法

木造2階建・軸組工法

用途地域

第一種中高層住居専用地域

電気

オール電化

屋根

ガルバリウム鋼板

ガス

上水道

公営水道

下水道

本下水

取引態様

売主

完成時期

2026年1月

入居時期

2026年1月下旬

見学可能時期

2026年1月

建築確認番号

第R07確認建築金沢市000169号

小学校区

長坂台小学校

中学校区

野田中学校

年収目安

380 万円 (税込)

現況

建築中

施工

ハイエスト事業グループ株式会社

駐車台数

3台

種目

新築一戸建て

その他

※銀行諸経費、火災保険料等は別途必要です。 詳細はお問合せ下さい。

情報更新日

2025年11月29日

CONTACT

お問い合わせフォーム

1

入力

2

完了

お問い合わせ内容(複数回答可)
お名前
必須
お名前(ふりがな)
必須
ご年齢
必須
電話番号
必須
メールアドレス
必須
※携帯電話、スマートフォンの設定が【受信拒否設設定】をされている方は、 メールが受け取れなくなってしまいますので、ドメイン指定受信を行ってください。
郵便番号
必須
都道府県
必須
市区町村
必須
リーズナブルホームをどこでお知りになりましたか?
ご質問・ご要望
(できるだけ詳しくご記入いただきますとよりご希望に沿ったご紹介ができます)
石川・福井・富山エリアの新築一戸建てなら
リーズナブルホーム 金沢店

〒921-8064

石川県金沢市八日市5丁目426番地

フリーダイヤル:0120-198-506
リーズナブルホーム 福井店

〒910-0837

福井県福井市高柳1丁目916番地

フリーダイヤル:0120-198-516

お電話でのお問い合わせはこちら!

お気軽にどうぞ!

福井店

金沢店

《受付時間》10:00~18:00 水曜定休

宅地建物取引業:国土交通大臣(2)第9164号

© Reasonable Home All Rights Reserved.

カタログを見る

来場予約

会員登録